CASA MODELO SALVADOR - 368,41 m²



KIT MADEIRAMENTO
· Colunas (montantes) em madeira maciça 10,5cm x 10,5cm conforme projeto
· Paredes com encaixe tipo macho e fêmea com 3,5cm
· Cintamento duplo de 3,5cm x 12cm conforme projeto
· Estrutura de telhado com vigas e caibros com bitolas conforme projeto
· Forro em madeira com encaixe tipo macho e fêmea na parte interna da casa
· Portas externas em madeira maciça, portas internas chapeadas
· Janelas em madeira de lei com dimensões conforme necessidade do projeto
· Pregos galvanizados em diferentes bitolas conforme necessidade do projeto
· Manual de montagem detalhado

KIT ACABAMENTO
· Telhas cerâmica modelo Portuguesa
· Manta de isolamento para o telhado
· Revestimento de paredes (azulejos) para cozinha, área de serviço e banheiros
· Piso cerâmico em toda parte térrea e nos banheiros da parte superior
· Rejunte e argamassa para colocação de pisos e revestimentos
· Ferragens para portas e janelas
· Louças e Acessórios para banheiros e lavabos
· Metais para banheiros e lavabos
· Verniz com duplo filtro solar para a pintura das madeiras
· Tinta acrílica para pintura das paredes em Alvenaria

 

CASA MODELO SALVADOR - 175,87 m²



KIT MADEIRAMENTO
· Colunas (montantes) em madeira maciça 10,5cm x 10,5cm conforme projeto
· Paredes com encaixe tipo macho e fêmea com 3,5cm
· Cintamento duplo de 3,5cm x 12cm conforme projeto
· Estrutura de telhado com vigas e caibros com bitolas conforme projeto
· Forro em madeira com encaixe tipo macho e fêmea na parte interna da casa
· Portas externas em madeira maciça, portas internas chapeadas
· Janelas em madeira de lei com dimensões conforme necessidade do projeto
· Pregos galvanizados em diferentes bitolas conforme necessidade do projeto
· Manual de montagem detalhado

KIT ACABAMENTO
· Telhas cerâmica modelo Portuguesa
· Manta de isolamento para o telhado
· Revestimento de paredes (azulejos) para cozinha, área de serviço e banheiros
· Piso cerâmico em toda parte térrea e nos banheiros da parte superior
· Rejunte e argamassa para colocação de pisos e revestimentos
· Ferragens para portas e janelas
· Louças e Acessórios para banheiros e lavabos
· Metais para banheiros e lavabos
· Verniz com duplo filtro solar para a pintura das madeiras
· Tinta acrílica para pintura das paredes em Alvenaria

 

CASA MODELO SALVADOR - 134,00 m²



KIT MADEIRAMENTO
· Colunas (montantes) em madeira maciça 10,5cm x 10,5cm conforme projeto
· Paredes com encaixe tipo macho e fêmea com 3,5cm
· Cintamento duplo de 3,5cm x 12cm conforme projeto
· Estrutura de telhado com vigas e caibros com bitolas conforme projeto
· Forro em madeira com encaixe tipo macho e fêmea na parte interna da casa
· Portas externas em madeira maciça, portas internas chapeadas
· Janelas em madeira de lei com dimensões conforme necessidade do projeto
· Pregos galvanizados em diferentes bitolas conforme necessidade do projeto
· Manual de montagem detalhado

KIT ACABAMENTO
· Telhas cerâmica modelo Portuguesa
· Manta de isolamento para o telhado
· Revestimento de paredes (azulejos) para cozinha, área de serviço e banheiros
· Piso cerâmico em toda parte térrea e nos banheiros da parte superior
· Rejunte e argamassa para colocação de pisos e revestimentos
· Ferragens para portas e janelas
· Louças e Acessórios para banheiros e lavabos
· Metais para banheiros e lavabos
· Verniz com duplo filtro solar para a pintura das madeiras
· Tinta acrílica para pintura das paredes em Alvenaria

 

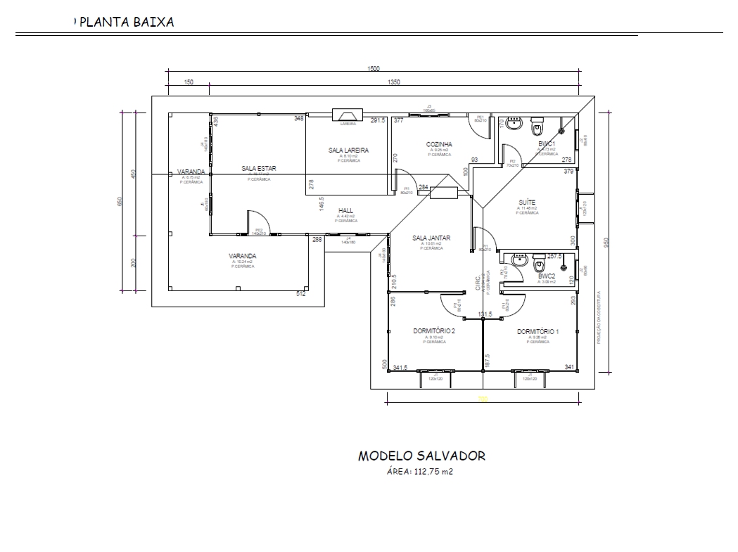
CASA MODELO SALVADOR - 112,75 m²



KIT MADEIRAMENTO
· Colunas (montantes) em madeira maciça 10,5cm x 10,5cm conforme projeto
· Paredes com encaixe tipo macho e fêmea com 3,5cm
· Cintamento duplo de 3,5cm x 12cm conforme projeto
· Estrutura de telhado com vigas e caibros com bitolas conforme projeto
· Forro em madeira com encaixe tipo macho e fêmea na parte interna da casa
· Portas externas em madeira maciça, portas internas chapeadas
· Janelas em madeira de lei com dimensões conforme necessidade do projeto
· Pregos galvanizados em diferentes bitolas conforme necessidade do projeto
· Manual de montagem detalhado

KIT ACABAMENTO
· Telhas cerâmica modelo Portuguesa
· Manta de isolamento para o telhado
· Revestimento de paredes (azulejos) para cozinha, área de serviço e banheiros
· Piso cerâmico em toda parte térrea e nos banheiros da parte superior
· Rejunte e argamassa para colocação de pisos e revestimentos
· Ferragens para portas e janelas
· Louças e Acessórios para banheiros e lavabos
· Metais para banheiros e lavabos
· Verniz com duplo filtro solar para a pintura das madeiras
· Tinta acrílica para pintura das paredes em Alvenaria

 

CASA MODELO SALVADOR - 89,77 m²



KIT MADEIRAMENTO
· Colunas (montantes) em madeira maciça 10,5cm x 10,5cm conforme projeto
· Paredes com encaixe tipo macho e fêmea com 3,5cm
· Cintamento duplo de 3,5cm x 12cm conforme projeto
· Estrutura de telhado com vigas e caibros com bitolas conforme projeto
· Forro em madeira com encaixe tipo macho e fêmea na parte interna da casa
· Portas externas em madeira maciça, portas internas chapeadas
· Janelas em madeira de lei com dimensões conforme necessidade do projeto
· Pregos galvanizados em diferentes bitolas conforme necessidade do projeto
· Manual de montagem detalhado

KIT ACABAMENTO
· Telhas cerâmica modelo Portuguesa
· Manta de isolamento para o telhado
· Revestimento de paredes (azulejos) para cozinha, área de serviço e banheiros
· Piso cerâmico em toda parte térrea e nos banheiros da parte superior
· Rejunte e argamassa para colocação de pisos e revestimentos
· Ferragens para portas e janelas
· Louças e Acessórios para banheiros e lavabos
· Metais para banheiros e lavabos
· Verniz com duplo filtro solar para a pintura das madeiras
· Tinta acrílica para pintura das paredes em Alvenaria

 

CASA MODELO SALVADOR - 58,07 m²



KIT MADEIRAMENTO
· Colunas (montantes) em madeira maciça 10,5cm x 10,5cm conforme projeto
· Paredes com encaixe tipo macho e fêmea com 3,5cm
· Cintamento duplo de 3,5cm x 12cm conforme projeto
· Estrutura de telhado com vigas e caibros com bitolas conforme projeto
· Forro em madeira com encaixe tipo macho e fêmea na parte interna da casa
· Portas externas em madeira maciça, portas internas chapeadas
· Janelas em madeira de lei com dimensões conforme necessidade do projeto
· Pregos galvanizados em diferentes bitolas conforme necessidade do projeto
· Manual de montagem detalhado

KIT ACABAMENTO
· Telhas cerâmica modelo Portuguesa
· Manta de isolamento para o telhado
· Revestimento de paredes (azulejos) para cozinha, área de serviço e banheiros
· Piso cerâmico em toda parte térrea e nos banheiros da parte superior
· Rejunte e argamassa para colocação de pisos e revestimentos
· Ferragens para portas e janelas
· Louças e Acessórios para banheiros e lavabos
· Metais para banheiros e lavabos
· Verniz com duplo filtro solar para a pintura das madeiras
· Tinta acrílica para pintura das paredes em Alvenaria